type=11
Ajuntament de la Roca del Vallès/L'Ajuntament valida l'avantprojecte del futur Espai de la Gent Gran al municipi El projecte s’ha desenvolupat des de zero durant aquest mandat i preveu centre de dia, habitatges amb serveis i oficina d’atenció a la ciutadania.

">

L'Ajuntament valida l'avantprojecte del futur Espai de la Gent Gran al municipi

Última revisió 25-11-2025 16:20
25/11/2025

El projecte s’ha desenvolupat des de zero durant aquest mandat i preveu centre de dia, habitatges amb serveis i oficina d’atenció a la ciutadania.

L’Ajuntament va presentar ahir, durant l’Audiència Pública, l’avantprojecte del futur Espai de la Gent Gran, una actuació estratègica que es configura com un pas important en la planificació municipal d’atenció a aquest col·lectiu. El projecte s’ha desenvolupat des de zero en l’actual mandat, davant l’absència d’un servei municipal estructurat i d’infraestructures específiques destinades a la gent gran.
Fa només un any es va posar en marxa el nou servei dels Espais de la Gent Gran, conjuntament amb el nou local de Serveis Socials, fet que ha permès treballar més directament amb la població gran i conèixer millor la seva realitat i necessitats.

Un projecte impulsat íntegrament en aquest mandat   
A l’inici del mandat, la situació era de manca total d’espais municipals destinats específicament a la gent gran:

  • Els casals físics de la Torreta i Santa Agnès estaven tancats.
  • A la Roca no hi havia cap local habilitat per a aquest col·lectiu.
  • L’atenció municipal se centrava en subvencions i activitats puntuals, però sense un model d’atenció continuada.

En aquest context, es va definir com a objectiu prioritari impulsar un projecte integral que garantís autonomia, convivència, prevenció i acompanyament. Amb aquesta voluntat, s’ha elaborat l’avantprojecte, que preveu licitar les obres abans de finalitzar l’actual legislatura, si els terminis tècnics ho permeten.

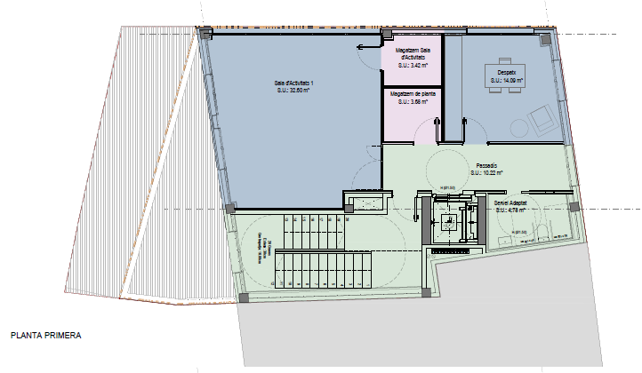
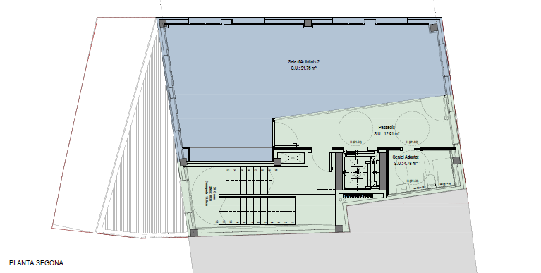
El document contempla:

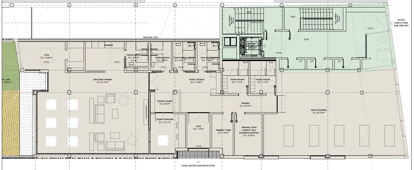
  • Centre d’Atenció Diürn
  • 13 habitatges amb serveis
  • Oficina d’Atenció a la Gent Gran amb bar obert cap al parc
  • Model SAIAR (Servei d’Atenció Integral a l’Àmbit Rural)
  • Implantar Pisos Dotacionals

 

Espais dissenyats per a l’autonomia i la convivència comunitària           
L’equipament s’ha dissenyat amb una clara orientació al confort i la convivència comunitària. A la planta baixa hi haurà el centre de dia, amb espais d’estada, menjador, àrea de fisioteràpia, cuina i jardí exterior. Les plantes superiors acolliran 13 habitatges tutelats, que permetran viure de forma autònoma amb serveis d’acompanyament i zones compartides.

La ubicació afavorirà la interacció entre generacions, especialment per la proximitat a l’Escola Mogent i al parc, que comptarà amb un accés obert des del bar vinculat a l’Oficina d’Atenció. Aquesta concepció busca promoure espais de relació amb el poble i evitar l’aïllament.

A més, l’edifici recuperarà la volumetria de l’antic Ajuntament Vell i integrarà elements patrimonials existents, com els finestrals gòtics, per preservar la memòria arquitectònica local.

Una actuació fonamentada en dades socials      
Per definir el model d’atenció, s’han mantingut reunions amb el Departament d’Acció Social i s’ha encarregat a SUMAR un diagnòstic social. Actualment, el municipi registra:

  • 322 persones grans sense grau de dependència
  • 150 amb grau 1
  • 103 amb grau 2
  • 60 amb grau 3
  • 59 persones majors de 65 anys reben atenció domiciliària

Durant aquesta legislatura, el pressupost destinat a l’atenció domiciliària ha crescut de 130.000 a 240.000 euros anuals, reforçant el compromís municipal amb la cura i la qualitat de vida de la gent gran.

La regidora de Gent Gran, Marta Pi, ha destacat que “Quan vam iniciar el mandat, no hi havia cap espai per a la gent gran ni cap projecte actiu. Els casals estaven tancats i a la Roca no existia cap local destinat a aquest col·lectiu. Amb aquest projecte fem un pas històric perquè obrim per primera vegada una política clara d’atenció a la gent gran. Apostem pel model SAIAR, que fomenta l’autonomia i la prevenció, i creem espais dignes, accessibles i vinculats al municipi. L’Espai de la Gent Gran marcarà un abans i un després per a les persones grans del poble.”     
 

Inversió i planificació

  • Inversió prevista: 3.270.000 euros
  • Durada estimada de les obres: 20 mesos
  • Estat actual: fase d’encàrrec del projecte arquitectònic

Aquest projecte representa l’inici d’un nou model municipal d’atenció a la gent gran, impulsat íntegrament durant aquesta legislatura, basat en la dignitat, la proximitat i la cohesió comunitària.